Solingen

Modernes Stadthaus in ruhiger Lage

Modernes Stadthaus in ruhiger Lage – Neubauprojekt 2026

In angenehmer, ruhiger Lage einer Seitenstraße ohne Durchgangsverkehr entstehen zwei hochwertige Doppelhaushälften im Stil klassischer Stadthäuser. Das geplante Neubauprojekt bietet eine attraktive Alternative zur Eigentumswohnung – ideal für alle, die urbanes Wohnen mit mehr Privatsphäre und eigenem Außenbereich verbinden möchten.

Die Häuser werden jeweils auf einem ca. 210 m² großen Grundstück zzgl. Anteil an einem Gemeinschaftsgrundstück errichtet. Die bewusst kompakt gehaltenen Grundstücke mit überschaubarem Gartenanteil unterstreichen den Charakter als moderne Wohnungsalternative: Statt eines Balkons genießen Sie hier Ihre eigene Terrasse mit angrenzendem Grünstreifen, der individuell gestaltet werden kann – sei es als kleine Garten-Oase, Kräuterbereich oder stilvoll angelegte Loungefläche.

Durchdachtes Raumkonzept mit Galerie

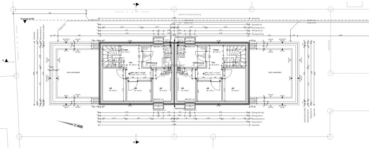
Die Häuser überzeugen durch eine großzügige, lichtdurchflutete Architektur und eine moderne, teiloffene Bauweise. Herzstück ist der offen gestaltete Küchen-, Wohn- und Essbereich im Erdgeschoss, der ein modernes, kommunikatives Wohngefühl vermittelt. Große Fensterflächen sorgen für viel Tageslicht und schaffen eine helle, freundliche Atmosphäre.

Im Obergeschoss erwarten Sie zwei gut geschnittene Schlafzimmer sowie ein separates Büro – ideal für Paare, anspruchsvolle Singles oder Familien mit einem Kind. Die zusätzliche Galerie verleiht dem Haus einen besonderen architektonischen Charme und unterstreicht das offene Raumgefühl.

Das Konzept ist optimal auf einen Zwei-Personen-Haushalt oder eine kleine Familie ausgerichtet und bietet eine perfekte Balance zwischen großzügigem Wohnen und überschaubarem Pflegeaufwand.

Neubau mit Gestaltungsspielraum

Der angegebene Kaufpreis umfasst den Erwerb des jeweiligen Grundstücks (separater Kaufvorgang) sowie die schlüsselfertige Errichtung des Hauses mit dem Verkäufer als Bauträger. Die Standardausstattung gemäß Baubeschreibung ist bereits enthalten. Individuelle Anpassungen, Sonderwünsche oder höhere Ausstattungsqualitäten können selbstverständlich gegen Aufpreis berücksichtigt werden, sodass Sie Ihr neues Zuhause ganz nach Ihren Vorstellungen gestalten können.

Die ausführliche Baubeschreibung sowie sämtliche projektbezogenen Unterlagen erhalten Sie nach Ihrer Anfrage bequem über unser Buchungssystem.

Gemeinschaftsflächen & Privatsphäre

Auf einem separaten Gemeinschaftsgrundstück entstehen die Zuwegung sowie die Parkflächen mit jeweils einem Carport pro Einheit.

Besonders attraktiv ist die Bebauung in zweiter Reihe: Diese Lage sorgt für zusätzliche Ruhe, ein hohes Maß an Privatsphäre und ermöglicht von der eigenen Terrasse aus einen schönen Blick ins Grüne.

Diese modernen Stadthäuser vereinen urbanes Wohnen, zeitgemäße Architektur und private Rückzugsmöglichkeiten – eine stilvolle Alternative zur klassischen Eigentumswohnung mit deutlich mehr Lebensqualität.

Grunddaten

Ort
42719 Solingen
Etage
0 von 1
Interne Objekt-ID
211829
Externe Objekt-ID
H2026JS05S
OpenImmo-ID
211829
Stand vom
20.02.2026

Flächenaufstellung

Wohnfläche
ca. 113 m²
Grundstücksfläche
ca. 210 m²
Anzahl Zimmer
4
Anzahl Schlafzimmer
2
Anzahl Badezimmer
1
Anzahl sep. WC
1
Anzahl Terrassen
1
Anzahl Stellplätze
1

Raumangebot und Ausstattung

Verfügbar ab
15.04.2026
Haustiere erlaubt
Nein
Baujahr
2026
Zustand
Neuwertig
Verkaufstatus
Verfügbar
Ausstattung
Gehoben
Dusche
Ja
Bad mit Badewanne
Ja
Bad mit Fenster
Ja
Carport
Ja
Wasch/Trockenraum
Ja
Rollladen
Ja
Dachform
Flachdach

Kaufpreis

Kaufpreis
499.000 €
MwSt.
Alle Preise inkl. derzeit geltender MwSt.
Käuferprovision
3,57 % vom Kaufpreis (inkl. MwSt.)
A+
A
B
C
D
E
F
G
H
Energie­ausweistypBedarfsausweis
Gültig bis16.12.2028
Mit WarmwasserJa
Endenergiebedarf55,30 kWh/(m²·a)
PrimärenergieträgerElektrisch
EnergieeffizienzklasseB
Energieausweisliegt vor
HeizungsartFußbodenheizung
EnergieträgerElektro

Ausstattung.

Eine umfangreiche Baubeschreibung erhalten Sie nach der Anfrage über das Portal in unserem Buchungssystem, in welches Sie per Mail nach der Anfrage eingeladen werden.

Dort erhalten Sie Zugriff auf alle notwendigen Dokumente.

Baujahr: 2026
Massivbauart
Wohnfläche 113m²
teilunterkellert
Grundstücksfläche 210m² plus Gemeinschaftsflächen

- 4 Zimmer
- Badezimmer mit Wanne, Dusche und Fenster
- Gäste WC
- Wärmepumpe mit PV-Anlage
- Fenster Kunststoff dreifach-verglast
- Carport
- kleine Terrasse (an keinem Grünstreifen)

Lage

Die angebotene Immobilie befindet sich in einer sehr gefragten, gewachsenen Wohnlage von Solingen-Wald. Die Umgebung zeichnet sich durch eine ruhige, familienfreundliche Nachbarschaft aus, die von Ein- und Mehrfamilienhäusern, kleineren Grünflächen und einer angenehmen Wohnatmosphäre geprägt ist. Die Lage in einer Seitenstraße sorgt für geringe Verkehrslasten und ein hohes Maß an Wohnqualität.

Verkehrsanbindung & Infrastruktur

Solingen verfügt über eine gut ausgebaute Infrastruktur mit hervorragenden Anbindungen an den öffentlichen Nahverkehr und an überregionale Verkehrswege. Mehrere Buslinien verbinden den Stadtteil Wald regelmäßig mit dem Zentrum von Solingen und den umliegenden Städten des Bergischen Landes. Zudem erreichen Sie über die nahegelegenen Straßen- und Autobahnverbindungen (z. B. A46) schnell die urbanen Zentren wie Düsseldorf oder Wuppertal, was die Lage sowohl für Pendler als auch für familienorientiertes Wohnen attraktiv macht.

In fußläufiger Nähe befinden sich diverse Einkaufsmöglichkeiten des täglichen Bedarfs, Cafés sowie Restaurants, die das Alltagsleben komfortabel und abwechslungsreich gestalten. Darüber hinaus bieten lokale Dienstleister, Apotheken und Arztpraxen eine gute Versorgung direkt vor Ort.

Kindergärten & Grundschulen

Für Familien mit kleinen Kindern ist die Lage besonders vorteilhaft: In unmittelbarer Umgebung gibt es mehrere Kindertagesstätten und Kindergärten in verschiedenen Trägerschaften, die ein breites Betreuungsangebot bieten. Dazu zählen unter anderem:

Katholischer Kindergarten St. Katharina – gut bewertete Einrichtung in Nachbarschaftsnähe

- Evangelischer Kindergarten Wiedenhof – familienfreundliche Betreuung
- Kindergarten Kuddelmuddel e.V.
- Kindertagesstätte Zwappel e.V.
- Kita Kompass

sowie weitere Einrichtungen, die eine flexible Betreuungslandschaft abdecken.

Diese Vielfalt ermöglicht es Eltern, eine passende Betreuungslösung für unterschiedliche Altersgruppen und Bedürfnisse zu finden.

Auch im schulischen Bereich ist die Lage vorteilhaft: Zahlreiche Grundschulen sind komfortabel erreichbar, darunter:

- Gemeinschaftsgrundschule Gottlieb‑Heinrich‑Straße
- Grundschule Am Rosenkamp
- Städt. Gemeinschaftsgrundschule Weyer
- Grundschule Westersburg

Diese Schulen bieten unterschiedliche pädagogische Profile und sind in der Regel mit dem Rad oder öffentlichen Verkehrsmitteln gut erreichbar. Zusätzlich gibt es weiterführende Schulen in Solingen, die eine lückenlose Bildungsgrundlage bis zur Sekundarstufe I und II ermöglichen.

Umfeld & Freizeit

Der Stadtteil Wald verbindet urbanes Leben mit naturnahen Erholungsmöglichkeiten. Viele Grünflächen, kleine Parks und Spazierwege in der Umgebung laden zu Aktivitäten an der frischen Luft ein. Auch das nahe gelegene Ittertal bietet schöne Möglichkeiten für Spaziergänge, Radtouren oder Naturbeobachtungen – perfekt für Familien und Freizeitaktivitäten im Freien.

Zusammengefasst bietet die Lage eine hervorragende Mischung aus ruhigem Wohnumfeld, exzellenter Infrastruktur, vielseitigen Bildungsangeboten und hoher Lebensqualität – ideal für Familien, Paare oder alle, die eine ausgewogene Wohnlage mit kurzen Wegen schätzen.